plan scheme of an old apartment in Yeonhui-dong, Seoul
연희동 연희궁 아파트 평면 scheme 1972
앞서 올린 연희동 연희궁 아파트 사진들
https://taekle.blogspot.com/2020/07/an-old-apartment-in-yeonhui-dong-seoul.html
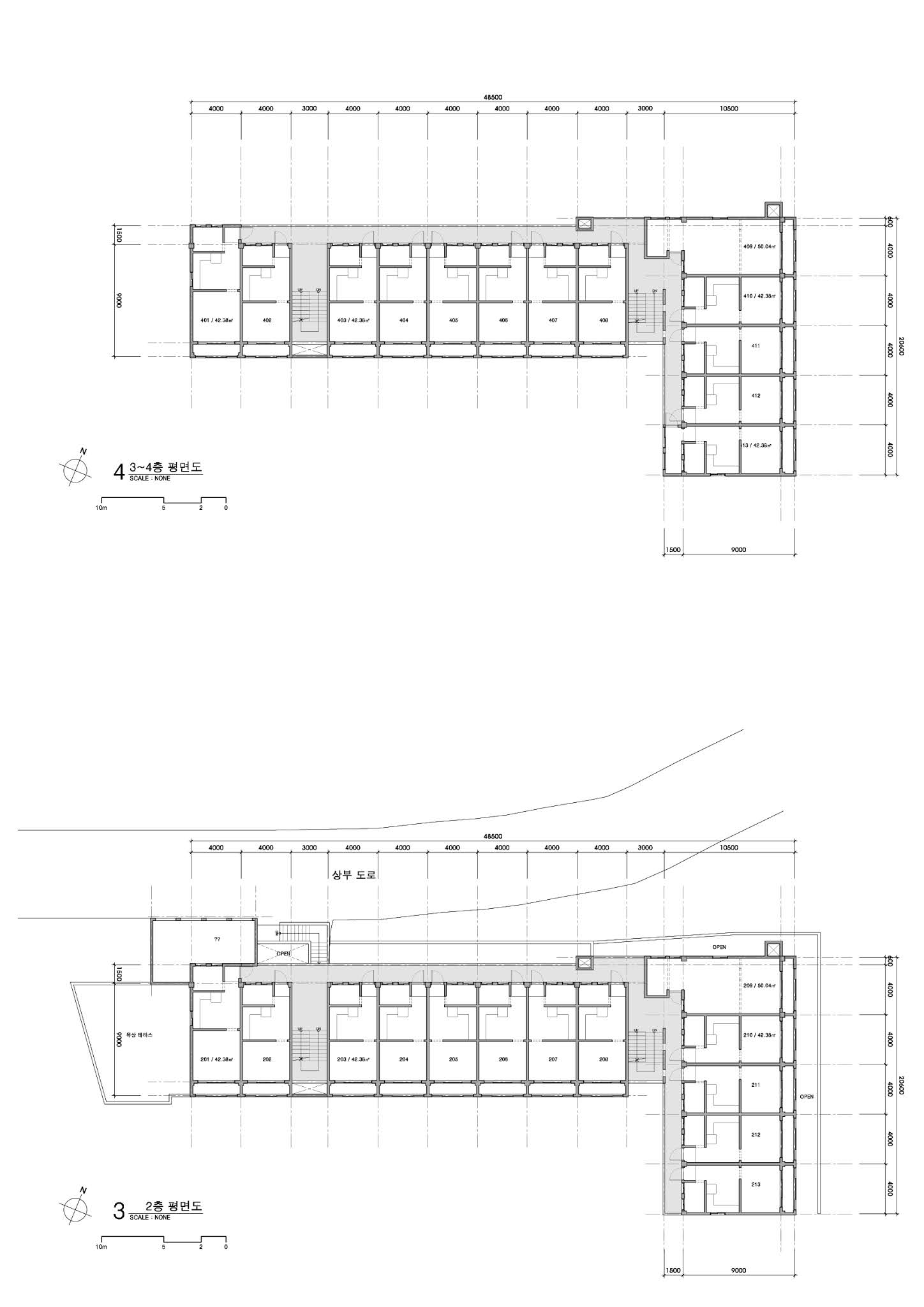
연희동 연희궁 아파트의 평면의 구성을 도면으로 재구성해 보았다
연희동 작은 안산자락의 남쪽 경사지에 위치해 있다
도로 건너편으로 1978년 준공한 연희상가 아파트가 위치한다.
2, 3, 4 층 평면도
지층 및 1층 평면도
1층평면도의 좌측 계단실에서 여러 레벨을 연결하면서도
보안에 신경쓴 동선의 구성을 확인할 수 있다.
후면 산자락 도로(2층 레벨)에서 진입하는 계단은
1층의 일부 호실(주거가 아닌)에는 직접 접근이 가능하지만
나머지 주거 세대들에 접근하려면 전면 공지 쪽으로 내려온 뒤
경비실을 지난 후 다른 2개소의 계단을 통해서 올라가야 하는 구조이다.
좌측의 사다리꼴 부분은 증축되었거나 적어도 본동 건물과는 별도로 지어진 것으로 보이나
현재는 하나의 건물처럼 붙어 있다(2개층 규모)
용도는 확인이 힘들었다.
지하층 오른쪽 ㄱ자로 꺾인 부분도 세대나 호실이 있는 것으로 보이는데
대장에는 1층부터 세대가 있는 것으로 기재되어 있어
확실한 용도 확인이 필요해 보이나 직접 확인하지 못했다.
대장엔 1층에 9세대, 2층 ~4층은 각각 13세대 씩 총 48세대로 기재되어 있다.
전체적으로 4m 경간을 기준으로 세대들이 배치되어 있으며
세대 면적은 42.38㎡이 주를 이루고 일부 세대가 50.04㎡로 되어 있다.
복도에서 출입구, 욕실, 주방/거실, 방, 발코니의 일자 구성으로 되어 있는 것으로 파악된다.
직접 확인한 것은 아니고 인터넷 검색을 통해 추정한 내용이다.
실내 벽체의 구성 또한 검색된 사진으로 추정한 것으로
각실의 크기나 배치에 차이가 있을 수 있다.




Comments
Post a Comment